Trevi

Il casale
Soggiorno con camino
Soggiorno
Cucina
Cucina
Camera matrimoniale
Bagno
Scale al messanino e bagno di servizio
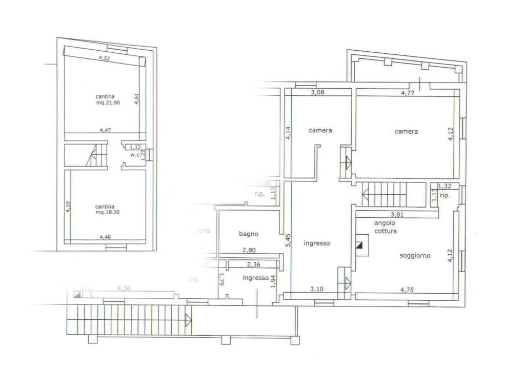
Planimetria